Overview
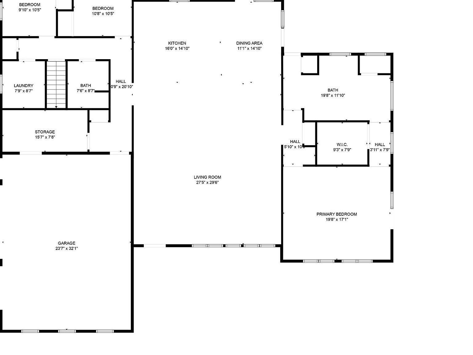
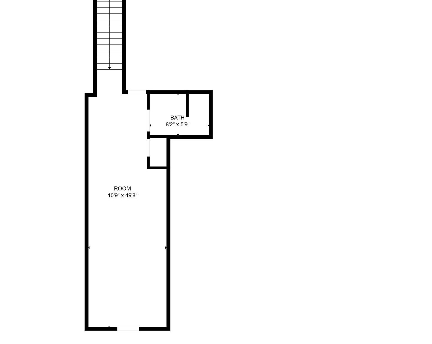
Custom-built 4 bed, 3 bath, 3-car garage home on 2.11 acres with private drive. 30x50 living area w/ 9’ walls (14’ at peak), concrete floors, and 100+ yr old 10’ windmill ceiling fan. Kitchen features Hickory cabinets, concrete counters w/ seating & 2nd sink, whiskey barrel backsplash, ice maker, beverage & wine coolers, and dual gallery refrigerator (stays). Bar, Klipsch surround sound, large dining space. Primary suite w/ double tray ceiling, seasonal closet, spa bath, patio/hot tub access & pond views. Hunter’s mudroom w/ in-ground storm shelter. Upstairs flex room w/ full bath, deck & pond views. Fully floored attic w/ spray foam. New fencing & flower garden boxes. 30x50 insulated shop w/ lean-to, built-ins, water, electric, and garage for multiple vehicles/toys. Hot tub stays.
Property Details
| Bedrooms | 4 |
| Bathrooms | 3.0 |
| Living Space | 3,518 sqft |
| Lot Size | 92,085 sqft |
| Year Built | 2016 |
| Property Type | House |
| Agent | Robert Laub |











































